The Truth Building - Suite 1B - 960 Sq. Ft. Click here ---> Video Tour of Suite 1B!

Suite 1 is located in the front of the building along South Front Street. With high ceilings and large windows, they offer plenty of natural light and great views out to Front Street and the Mankato Public Safety building.
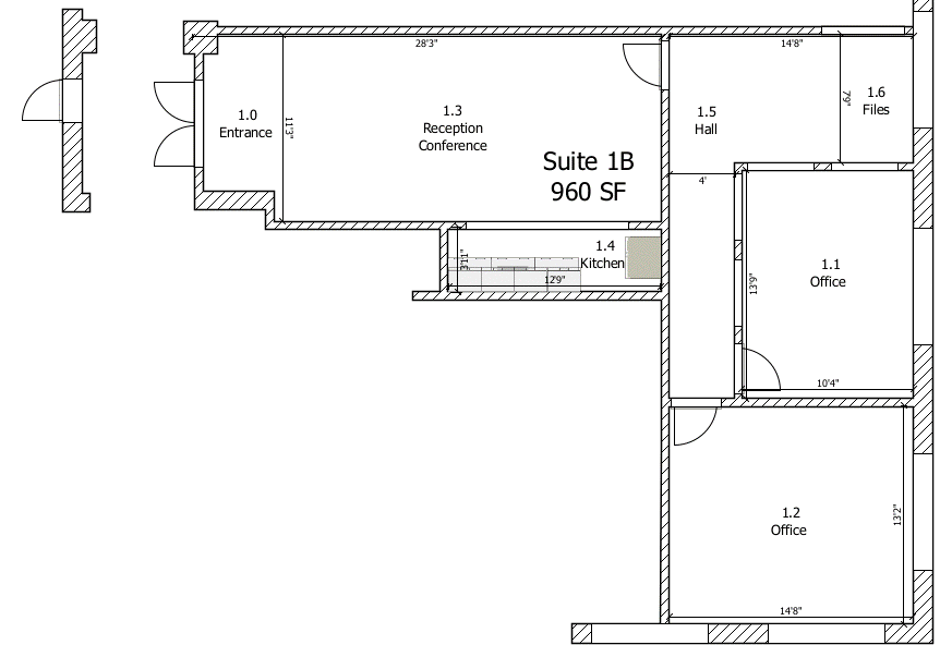
Suite 1 with 960 square feet includes a reception area connected to a large open work area, and two private offices with large exterior windows.








