Office/Retail Space in Downtown Mankato, Minnesota
709 South Front Street
The Liberty Building
709 South Front Street
This single story professional office building provides comfortable and quiet workspace conveniently located in Mankato's downtown business district. The building is professionally managed with spacious men's and women's restrooms and a common cooridor giving all tenants access to multiple entrances. The building's heating and cooling system has been recently upgraded to provide modern computerized control of space temperature and ventilation.
Current tenants include Quest Marketing offering promotional items, the staffing services company Spherion, the internet and website marketing company SEO what.com, and two nonprofit organizations serving people with disabilities, SMILES Center for Independent Living and ARC of Minnesota Southwest.
The 709 building is located near the corner of South Front St and Liberty St, across Front Street from the Mankato Department of Public Safety and just a few hundred feet from the Liberty Building. With great visibility from busy South Front Street, close proximity to Mankato's business core, and below market rents, the 709 building offers a smart business location.
The Liberty Building
The Liberty Building was originally constructed in the 1920s as an automotive dealership. Today the building still benefits from its original charm. The exterior’s original brickwork is accented with beautifully carved stone. Large glass block openings cast light into the terrazzo floored showrooms which are now the studios of Sun Moon Yoga. While the commercial suites have been updated to provide functional and professional modern workspace, remnants of the original character and charm can be found throughout the building.
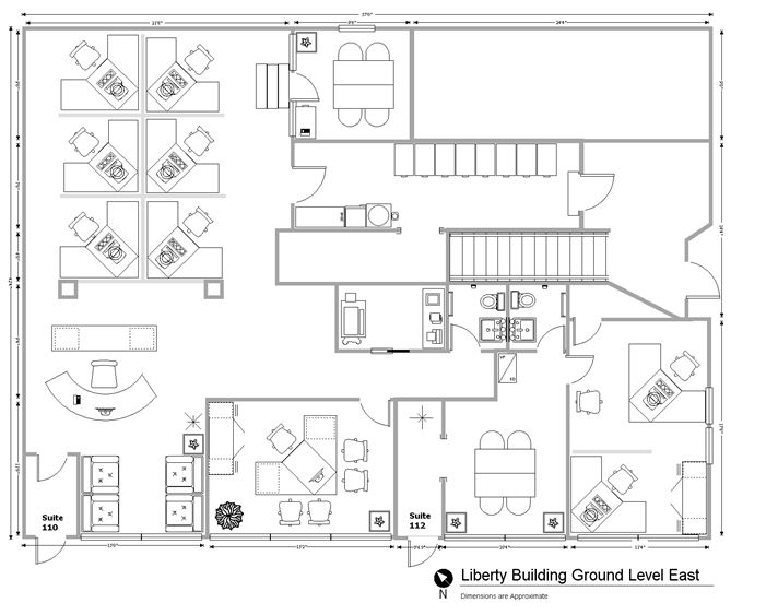
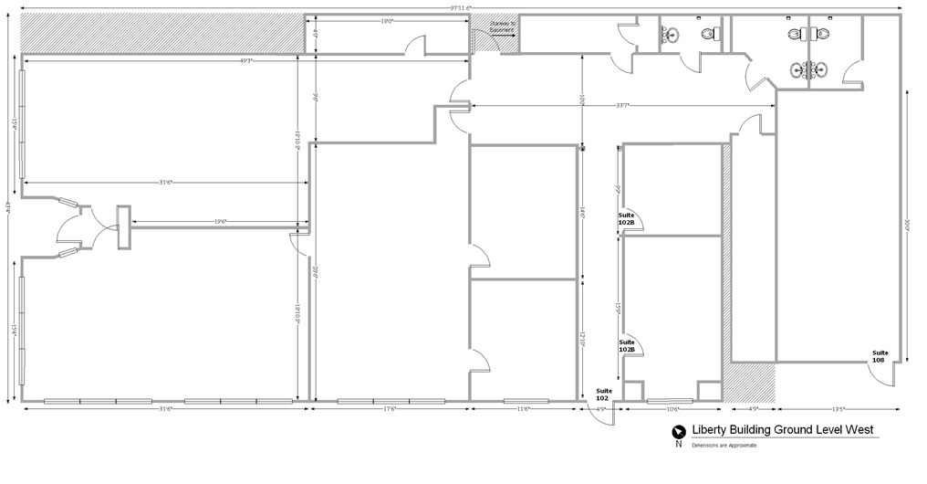
The overall layout of the ground level can be viewed on the
West half and
East half floor
plans. Each suite has designated parking in the 4,500 square foot paved lot behind the building, and plenty of two-hour client
parking along Liberty and Front Streets. Extra storage is
available in the dry and spacious basement which features a ramped
entrance with overhead door (a remnant from the automotive
dealership).
The commercial suites are served by high efficiency forced air natural gas heating and rooftop air conditioning. All of the leases are modified gross, with tenants paying for their electricity and the landlord paying for all other expenses including gas (heat), sewer and water, rubbish and snow removal.

